Search

Save
Ask
Tour
Hide
Share
$288,000
227 Days On Site

167 OAK CIRCLE
OCALA, FL 34472

For Sale|Single Family Residence|Active
3
Beds
2
Total Baths
2
Full Baths
1,332
SqFt
$216
/SqFt
2022
Built
Subdivision:
SILVER SPGS SHORES UN 12
County:
Marion
Call Now: (954) 354-6630
Is this the listing for you? We can help make it yours.
(954) 354-6630
167 OAK CIRCLE167 OAK CIRCLE167 OAK CIRCLE167 OAK CIRCLE
Save
Ask
Tour
Hide
Share

Mortgage Calculator

Monthly Payment (Est.)

$1,314
Calculator powered by Showcase IDX, a Constellation1 Company. Copyright ©2026 Information is deemed reliable but not guaranteed.

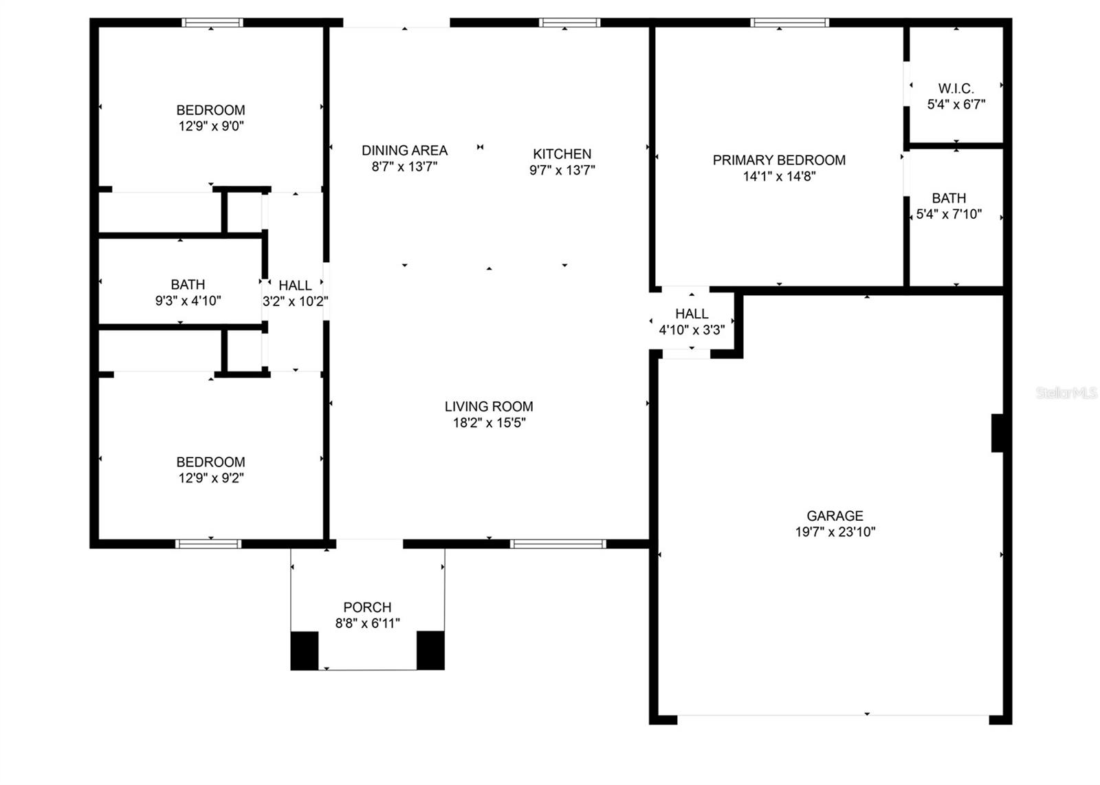
Built in 2022, this 3-bedroom, 2-bath home in Silver Springs Shores offers a functional split-bedroom layout, modern finishes, and energy-efficient features. The open floor plan includes luxury vinyl plank flooring in the main living areas, carpeted bedrooms, and neutral finishes throughout. The kitchen features stainless steel appliances, ample cabinetry, and generous counter space, opening to a dedicated dining area and spacious living room—ideal for everyday living and entertaining. The primary suite includes a walk-in closet and private en-suite bath, while two guest bedrooms are positioned near a full bath with tub/shower. Additional features include a solar system, owned water softener, and washer and dryer located in the garage. The backyard offers garden space, a fig tree, and open farmland views, providing a peaceful setting. Conveniently located near shopping, dining, schools, and recreation, with easy access to Downtown Ocala and The Villages, this move-in-ready home offers modern comfort in a quiet setting.

Save
Ask
Tour
Hide
Share
Listing Snapshot
Price 
$288,000
Days On Site 
227 Days
Bedrooms 
3
Inside Area (SqFt) 
1,332 sqft
Total Baths 
2
Full Baths 
2
Partial Baths 
N/A
Lot Size 
0.23 Acres
Year Built 
2022
MLS® Number 
OM708390
Status 
Active
Property Tax 
$3,724.28
HOA/Condo/Coop Fees 
N/A
Sq Ft Source 
Public Records
Friends & Family
Recent Activity
4 days agoListing updated with changes from the MLS®
4 days agoPrice changed to $288,000
7 months agoListing first seen on site
General Features
Acres 
0.23
Attached Garage 
Yes
Direction Faces 
East
Energy Features 
Solar
Foundation 
Slab
Garage 
Yes
Garage Spaces 
2
Levels 
One
Number Of Stories 
1
Parking 
Attached
Property Sub Type 
Single Family Residence
Sewer 
Septic Tank
SqFt Total 
1901
Utilities 
Electricity Connected
Water Source 
PrivateWell
Zoning 
R1
Interior Features
Appliances 
DishwasherMicrowaveRangeRefrigerator
Cooling 
Central Air
Flooring 
Carpet
Heating 
Central
Laundry Features 
In Garage
Kitchen 
Dimensions - 9.7x13.7Level - First
Living Room 
Dimensions - 18.2x15.5Level - First
Master Bedroom 
Dimensions - 14.1x14.8Level - First
Save
Ask
Tour
Hide
Share
Exterior Features
Construction Details 
Concrete
Exterior 
Garden
Roof 
Shingle
Community Features
Financing Terms Available 
CashConventionalFHAVA Loan
MLS Area 
34472 - Ocala
Roads 
Paved
Township 
16S
Schools
School District
Unknown
Elementary School
Emerald Shores Elem. School
Middle School
Lake Weir Middle School
High School
Lake Weir High School
Listing courtesy of EXP REALTY LLC (352) 456-8331



Listing information is provided by Participants of the Stellar MLS. IDX information is provided exclusively for personal, non-commercial use, and may not be used for any purpose other than to identify prospective properties consumers may be interested in purchasing. Information is deemed reliable but not guaranteed. Properties displayed may be listed or sold by various participants in the MLS Copyright 2026, Stellar MLS.
Last checked: 2026-04-11 09:04 PM EDT

Neighborhood & Commute
Source: Walkscore
Disclosure: Community information and market data powered by Constellation Data Labs. Information is deemed reliable but not guaranteed.
Save
Ask
Tour
Hide
Share